電気シンボル表を配置する
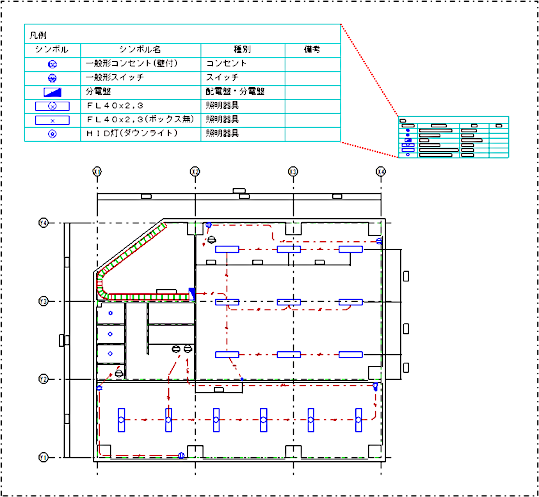
図面で使用している電気シンボルの一覧表を配置します。表にはシンボルごとの個数も表示できます。
表は、図面内に配置することや、Microsoft Excelなど他のアプリケーションに貼り付けることもできます。
[電気シンボル表]コマンド(
)をクリックして実行します。
|
コマンドの実行方法 |
[電気]タブ>[電気シンボル表] [傍記]タブ>[電気シンボル表] |
[コマンドプロパティ]が表示されます。
電気シンボル表の内容を設定します。

| 項目 | 説明 | ||
|
|
[電気設定]ダイアログの[表]タブの[電気シンボル表]タブで、電気シンボル表の詳細設定を行う場合はクリックします。 [電気シンボル表]タブについて、詳しくは以下を参照してください。 |
||
|
選択方法 |
表の集計方法を選択します。
|
||
|
形式 |
表の配置先を選択します。
[切替]ボタンをクリックすると、[図面内]と[クリップボード]が交互に切り替わります。
|
||
|
枠 |
表の枠線の有無を選択します。 [形式]で[図面内]を選択した場合に設定できます。 [切替]ボタンをクリックすると、[あり]と[なし]が交互に切り替わります。 |
||
|
文字色 |
文字の色を選択します。 |
||
|
文字高さ(mm) |
文字の高さを入力します。 |
||
|
文字幅(%) |
文字の幅(半角文字)を、文字の高さに対する比率で入力します。 |
||
|
文字間隔 |
文字の間隔(プロッタ出力したときの実寸)を入力します。 |
||
|
行間隔 |
行の間隔(プロッタ出力したときの実寸)を入力します。 |
||
|
文字背景を隠す |
電気シンボル表の文字と図形が重なった場合に、文字の背景を隠すときは[On]を選択します。 [On/Off]ボタンをクリックすると、[On]と[Off]が交互に切り替わります。 |
||
|
フォント |
フォントを選択します。 |
||
|
スタイル |
文字の傾きや太さを選択します。 |
||
|
最小行高さ |
文字がないときの最小のセルの高さを入力します。 |
||
|
最小列幅 |
文字がないときの最小のセルの幅を入力します。 |
||
|
マージン上 |
セル内の文字列の上端と罫線の間隔を入力します。 |
||
|
マージン下 |
セル内の文字列の下端と罫線の間隔を入力します。 |
||
|
マージン左 |
セル内の文字列の左端と罫線の間隔を入力します。 |
||
|
マージン右 |
セル内の文字列の右端と罫線の間隔を入力します。 |
|
電気シンボル表に個数を表示するには、[電気シンボル表]の表示項目を変更します。 1. [コマンドプロパティ]の 2. [個数]にチェックを付けます。 3. [OK]ボタンをクリックします。
[電気シンボル表]タブについて、詳しくは以下を参照してください。 |
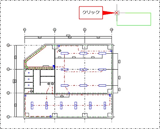
電気シンボルを範囲選択します。
1つずつクリックして選択することもできます。

右クリックまたは[Enter]キーを押し、確定します。
仮表示を確認し、配置位置をクリックします。

電気シンボル表が配置されます。

電気シンボル表に表示する項目は、[電気シンボル表]タブで設定します。詳しくは、以下を参照してください。
作成した電気シンボル表の編集について、詳しくは以下を参照してください。
表を他のアプリケーションに貼り付ける場合表を他のアプリケーションに貼り付ける場合
電気シンボル表を他のアプリケーションに貼り付ける場合は、クリップボードにコピーしてから貼り付けます。
クリップボードから貼り付けると、[シンボル]の項目は出力されません。
ここでは例として、Microsoft Excelに貼り付けます。
[コマンドプロパティ]の[形式]で[クリップボード]を選択します。

電気シンボルを範囲選択します。
1つずつクリックして選択することもできます。

右クリックまたは[Enter]キーを押し、確定します。
表作成終了の確認ダイアログが表示されます。
[OK]ボタンをクリックします。

貼り付け先のアプリケーションを起動します。
配置位置をクリックし、[貼り付け]をクリックします。

電気シンボル表のデータが貼り付けられます。

罫線を作成したり、列の幅を変更したりして表を調整します。

|
電気シンボル表の文字を編集して文字列が長くなる場合は、表を右クリックして表示されるメニューで[列幅固定解除]をクリックしてください。列幅が文字列に合わせて広がり、文字が表示されます。 |
