画像データを編集する
貼り付けた画像データは、図面上で傾き・距離などを補正したり、加工したりできます。
|
画像ファイルから画像データを貼り付ける際、[コマンドプロパティ]の[図面内に格納]を[Off]にして貼り付けた場合は、元の画像ファイルとリンクした状態で貼り付けられます。図面内の画像データを編集すると、元の画像ファイルも編集されます。図面内の画像のみを編集する場合は、[図面内に格納]を[On]にして貼り付けてください。 |
青焼き図面を補正する
[青焼き補正]コマンドを使用して、スキャンして取り込んだ青焼き図面の画像データを、一度に自動で補正(色補正・ゴミ取り)できます。
青焼き図面をスキャンする場合は、カラーまたはグレースケールで保存してください。
[画像ツール]タブの[青焼き補正]コマンド(
)をクリックして実行します。

補正する画像データをクリックします。

右クリックまたは[Enter]キーを押し、確定します。
青焼き図面画像の色やゴミなどが自動で補正されます。

画像データを補正する
画像データが傾いている場合や、画像上の寸法値と図面上の距離とが合っていない場合に、傾きや距離を補正できます。
傾き補正
[画像ツール]タブの[画像補正]コマンド(
)をクリックして実行します。

[コマンドプロパティ]が表示されます。
[傾き補正]を[On]、[距離補正]を[Off]に設定します。

[補正後角度]を以下のように設定します。

| 項目 | 説明 |
|
補正後角度 |
画像データの傾き(基準線)をどの角度に合わせるかを入力します。
|
傾きを補正する画像データをクリックします。

回転する基準点をクリックし、基準線の始点・終点をクリックします。

画像データの傾きが補正されます。

距離補正
[画像ツール]タブの[画像補正]コマンド(
)をクリックして実行します。

[コマンドプロパティ]が表示されます。
[傾き補正]を[Off]、[距離補正]を[On]に設定します。

画像データ上に記載されている寸法を、[補正後距離]に入力します。

[縦横同比率で距離補正]を[On]に設定します。
縦横いずれかの片方のみ距離が異なる場合は[Off]に設定します。
距離を補正する画像データをクリックします。

手順3で入力した寸法線と同じ寸法線の始点・終点をクリックします。
より正確に補正するには、できるだけ拡大してクリックします。

寸法値と同じ距離に補正されます。

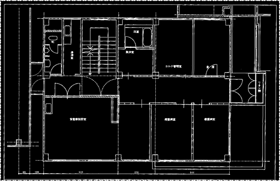
色を反転する
画像データの色を反転して表示します。
[画像ツール]タブの[画像補正]プルダウンメニューから[画像反転]コマンド(
)をクリックして実行します。

反転表示する画像データをクリックします。

画像データが白黒反転して表示されます。

|
画像データの反転表示は、印刷にも反映されます。反転表示を元に戻して印刷する場合は、[印刷の設定]ダイアログの[画像の色を反転して印刷する]にチェックを付けて印刷してください。 |
コントラストや明るさを調整する
画像データのコントラストや明るさを調整します。
[画像ツール]タブの[画像補正]プルダウンメニューから[画像調整]コマンド(
)をクリックして実行します。

調整する画像データをクリックします。

[画像調整]ダイアログが表示されます。
プレビューを確認しながら、コントラスト・輝度を調整します。

| 項目 | 説明 |
|
コントラスト |
コントラスト(色の違い)を強くするにはコントロールバーを[濃]側に、弱くするには[淡]側にスライドします。 |
|
輝度 |
画像を明るくするにはコントロールバーを[明]側に、暗くするには[暗]側にスライドします。 |
[OK]ボタンをクリックします。
調整内容が反映されます。

|
画像調整を実行すると、調整後のコントラスト・輝度が基準となります。再度[画像調整]ダイアログを表示すると、コントロールバーは中央に表示されます。 |
不要な部分をカットする
画像データの不要な部分を削除して、構図を整えることができます。
[画像ツール]タブの[画像補正]プルダウンメニューから[画像一辺カット]コマンド(
)をクリックして実行します。

カットする画像データをクリックします。

カットする辺をクリックし、目標位置をクリックします。

不要な部分が削除されます。

画像データの一部を塗りつぶす
画像データ上に不要な図形や文字などがある場合に、範囲を指定して塗りつぶすことができます。
[画像ツール]タブの[画像塗りつぶし]コマンド(
)をクリックして実行します。

[コマンドプロパティ]が表示されます。
塗りつぶし方法を設定します。

| 項目 | 説明 | ||
|
指示方法 |
塗りつぶす範囲の指定方法を選択します。
|
||
|
色設定 |
[色設定]ボタンをクリックして、塗りつぶしの色をダイアログで設定します。
|
塗りつぶしを行う画像データをクリックします。

塗りつぶす範囲を指定します。
[指示方法]で[矩形指示]を選択した場合は、塗りつぶす範囲の始点・終点をクリックします。

指定した範囲が塗りつぶされます。

[指示方法]で[頂点指示]を選択した場合[指示方法]で[頂点指示]を選択した場合
塗りつぶす範囲の頂点をクリックします。

右クリックまたは[Enter]キーを押し、確定します。
始点と終点は自動的に結ばれ、指定した範囲が塗りつぶされます。

消しゴムで画像データの一部を塗りつぶす
画像データ上に不要な図形や文字などがある場合に、消しゴムで消すようにカーソルでなぞって塗りつぶします。
[画像ツール]タブの[消しゴム]コマンド(
)をクリックして実行します。

[コマンドプロパティ]が表示されます。
消しゴムの動作を設定します。

| 項目 | 説明 | ||
|
大きさ |
消しゴム(カーソル)の大きさを選択します。 |
||
|
カーソル設定 |
画面表示を拡大・縮小した際、消しゴム(カーソル)の大きさを画面表示に合わせて変える場合は、[変わる]を選択します。[切り替え]ボタンをクリックしても、[変わる][変わらない]が切り替わります。 |
||
|
色設定 |
[色設定]ボタンをクリックして、塗りつぶしの色をダイアログで設定します。
|
左クリックしたまま、画像データの塗りつぶす部分をなぞります。
消しゴムでなぞった部分が塗りつぶされます。

画像をロックする
選択・移動・複写・削除ができないように、画像データをロックします。
|
画像ロックを設定すると、図面内のすべての画像データがロックされます。図面内の一部の画面データのみをロックすることはできません。 |
[画像ツール]タブの[画像ロック]にチェックを付けます。

図面内のすべての画像データがロックされます。
画像ロックを解除するには、[画像ロック]のチェックを外します。
|
画像ロックを解除せずに、画像データを移動・複写・削除するには、[画像移動]プルダウンメニューからコマンドを選択します。詳しくは、以下を参照してください。 |
画像データの外枠を表示する
図面内のすべての画像データに外枠を表示できます。
外枠は画面上でのみ表示され、印刷されません。
[画像ツール]タブの[外枠表示]にチェックを付けます。

図面内のすべての画像データに外枠が表示されます。

