冷媒配管を選定する
DK-BIMクライアントを使用して冷媒配管の口径を計算し、図面に反映します。
|
以下の機器は、冷媒選定の対象外です。
|
[DK-BIM連携]タブの[冷媒選定]コマンド(
)をクリックして実行します。

[DK-BIMログイン]ダイアログが表示されます。
[メールアドレス][パスワード]を入力し、[ログイン]ボタンをクリックします。
[メールアドレス][パスワード]は、DK-BIMアカウントを作成したときに登録したものを使用します。詳しくは、以下を参照してください。

DK-BIMにログインし、図面の表示に戻ります。正しくログインできなかった場合はエラーメッセージが表示されるので、エラーメッセージを確認し、ログインし直してください。
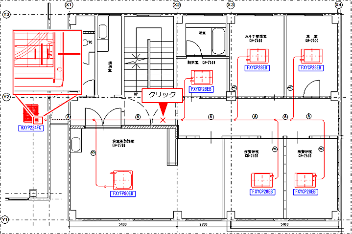
冷媒系統をクリックします。
冷媒配管、室内機、室外機、レフネットジョイントのいずれかを指示すると、冷媒系統が選択されます。冷媒系統は複数選択できます。ただし、範囲選択することはできません。
この例では、冷媒配管の口径を設定せずに室外機と接続しているためレデューサが配置されていますが、実行後に自動で削除されます。

右クリックまたは[Enter]キーを押し、確定します。
確認ダイアログが表示されます。
DK-BIMクライアントが起動していないことを確認し、[OK]ボタンをクリックします。
DK-BIMクライアントが起動している場合は、DK-BIMクライアントを終了してください。

|
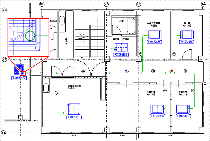
選択された冷媒系統の全部品に冷媒系統の情報が設定され、DK-BIMクライアントが起動し、冷媒選定の計算が実行されます。
冷媒選定が正常に終了すると、「冷媒の選定が正常に終了しました」というメッセージが表示されます。
[OK]ボタンをクリックします。

冷媒系統の計算結果が図面に反映され、反映完了のメッセージが表示されます。メッセージ内容は、計算結果により変わります。
[OK]ボタンをクリックします。

冷媒配管の口径サイズが変更されます。また、この例では、口径サイズの変更に伴い、室外機のレデューサも削除されます。

右クリックして表示されるメニューの[コマンドキャンセル]をクリック、または[Esc]キーを押します。
必要に応じ、変更結果を確認します。
- 室外機または室外機情報を付加した冷媒管をクリックし、[プロパティ]に[出荷時冷媒充填量][冷媒追加充填量]が設定されていることを確認します。
- レフネットジョイントをクリックし、[プロパティ]で型番を確認します。
|
[冷媒選定]実行後に冷媒配管の口径の変更、室外機の型番の変更、冷媒配管の追加など、冷媒系統に変更があった場合は、[冷媒選定]コマンドを再度実行してください。 |
|
[冷媒選定]した図面は、FILDER SiX電気版でも読み込めます。 室外機・室内機などの機器は、選択可能な状態で読み込まれるため、プロパティを表示でき、[冷媒選定]コマンドで設定した情報を確認・編集できます。 ただし、対象部材の一部である冷媒配管、レフネットジョイントは選択不可の状態で読み込まれ、冷媒配管のプロパティ、レフネットジョイントのプロパティを表示・編集することはできません。 |
冷媒選定ができない場合の対処
DK-BIMへログインできない
| 状況 | 対処 |
|
メールアドレスやパスワードが間違っている |
メールアドレスとパスワードを入力し直してください。 大文字・小文字が正しく入力されているか、メモ帳などに貼り付けて確認してください。 パスワードを忘れた場合は、[DK-BIMログイン]ダイアログの[パスワードを忘れた方はこちら]ボタンをクリックし、仮パスワードを再発行してください。
|
|
DK-BIMアカウントが未作成である |
アカウントを作成してください。アカウントの作成について、詳しくは以下を参照してください。 |
|
DK-BIMクライアントが見つからない |
[DK-BIMログイン]ダイアログの[DK-BIMクライアントへのパス]が正しいか確認してください。デフォルトのインストール先は「C:\Program Files\Daikin\DK-BIMクライアント」です。 インストール先を変更している場合は、[選択]ボタンをクリックし、「ThermalLoadCalculator.exe」が存在するフォルダを指定してください。
|
|
DK-BIMクライアントが最新版ではない |
DK-BIMクライアントの最新版をインストールしてください。詳しくは、以下を参照してください。 |
|
突然、ログインに失敗するようになった |
DK-BIMクライアントが最新版ではない可能性があります。 DK-BIMクライアントの最新版をインストールしてください。詳しくは、以下を参照してください。 |
冷媒選定ができない
| 状況 | 対処 |
|
冷暖フリーの室外機、ルームエアコンの室外機・室内機が存在している |
冷暖フリーの室外機やルームエアコンの室外機・室内機が含まれている冷媒系統では、冷媒選定計算は行えません。 |
|
室外機が存在していない、または2つ以上存在している |
冷媒系統の室外機が1つになるよう、冷媒系統を変更してください。 |
|
室外機が存在していない |
冷媒系統に室外機を配置するか、または室外機情報を設定してください。 |
|
接続されていない部品(配管など)がある |
未接続の部品がなくなるよう、冷媒系統を変更してください。 |
|
冷媒配管・エルボ・レデューサ・ティーズ・室外機・室内機以外が接続されている |
対象外の部品を冷媒系統から外してください。 |
|
分岐した配管がまた合流している |
分岐した配管を再度合流させている場合は、冷媒選定計算ができません。合流しないよう冷媒系統を変更してください。 |
|
非表示・編集不可のレイヤやシートの系統を選択している |
冷媒選定後、図面の更新を行う必要があるため、非表示・編集不可のレイヤやシートの冷媒系統は、冷媒選定計算できません。非表示・編集不可を解除してください。 |
冷媒選定の計算でエラーが発生した
「冷媒選定の計算でエラーが発生しました。」とエラーが表示され、ダイアログの[詳細]に以下のようなメッセージが表示された場合は、DK-BIMクライアントで正しく計算ができません。冷媒系統の作図を見直してください。
- 配管相当長が最大配管相当長を超える
- 室内内高低差が最大室内内高低差を超える
- 室外内高低差が最大室外内高低差を超える
- 対象外の室外機、室内機が存在する
- 室内機合計容量<室外機最小接続容量 となっている
- 室内機合計容量>室外機最大接続容量 となっている
- 室内機台数が接続可能台数を超えている
- 室外機に接続できない室内機が存在する
- 配管径の制限があり相当長による主管サイズアップが行えない
- 第一分岐以降40m対応不可
- 室外機~最遠室内機までの実配管長が範囲外 となっている
- 総延長(サイズアップ配管長×2+通常配管長)が範囲外 となっている
- 最初の室外機連結キット~各室外ユニットの配管実長が範囲外 となっている
- 各室内機~直近分岐管の実配管長が40m超 となっている
- 配管径の制限によりサイズアップできない配管が存在する となっている
- 第一分岐~室内機までの実配管長が範囲外 となっている
- 実長0mの配管あり となっている
- 室外機~最遠室内機までの相当長が範囲外 となっている
旧製品が混在している場合の対処
冷媒系統に旧製品が含まれていると、以下のようなエラーが表示され、該当の機器名が表示されます。

この場合は、[OK]ボタンをクリックし、DK-BIMクライアント、[ユーザーポータル]画面を閉じ、該当の機器を新しい機器と入れ替えてください。

